Overview
Description
AVAILABLE FOR SELL
location: thevakkal
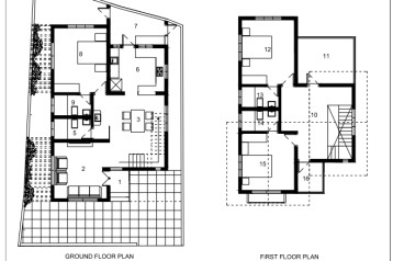
2. 4.400 cent /2400sqft/ 4BHK+stadyroom yutlity
3. infopark 3km, Kalamassery medical college 2.km,lulu mall 6km
4. Edappally Pukkattupady Road 400mtr
Nearest Places
-
School
0.5 KM
-
Hospital
1 KM
-
Mall
1.5 KM
-
Bus Station
1.3 KM
-
Airport
5 KM
Amenities
Comments
Leave a review
Your email address will not be published. Required fields are marked *
